1 Bedroom · 2 rooms in Carre d'Argent

840,000
Bedrooms: 1 Rooms: 2 Carre d'Argent

Description

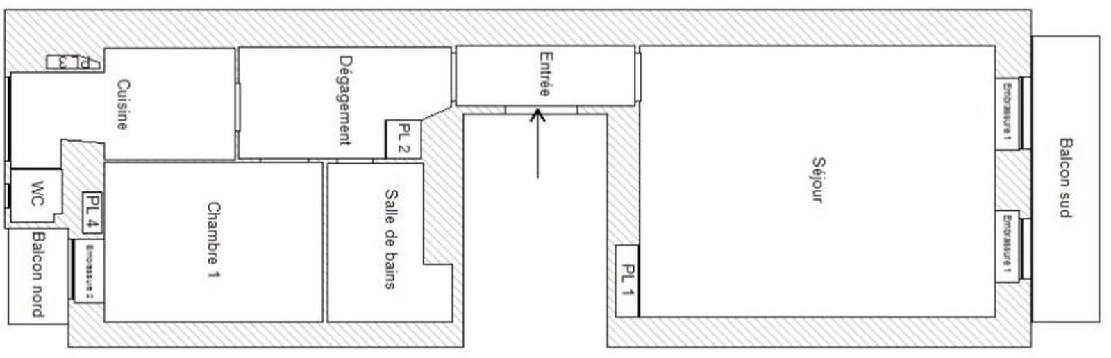
This 2-room apartment offers a stunning panoramic view of the Bay of Angels from the renowned Quai Des Unis in Nice. Covering 59.15 m², this home is part of a small condominium with low charges. The south-facing living room spans 27 m² and opens onto a 6m² balcony, perfect for enjoying the view. The bedroom is designed for tranquility, ensuring a peaceful retreat. It also includes a spacious bathroom and a separate toilet for added convenience.

The location is ideal, with easy access to a variety of shops, the Opera, and Place Masséna. The tram is just a short walk away, making transportation straightforward. Additionally, the property comes with a cellar, providing extra storage space.