1 Bedroom · 2 rooms in Musicians Quarter

470,000
Bedrooms: 1 Rooms: 2 Musicians Quarter

Description

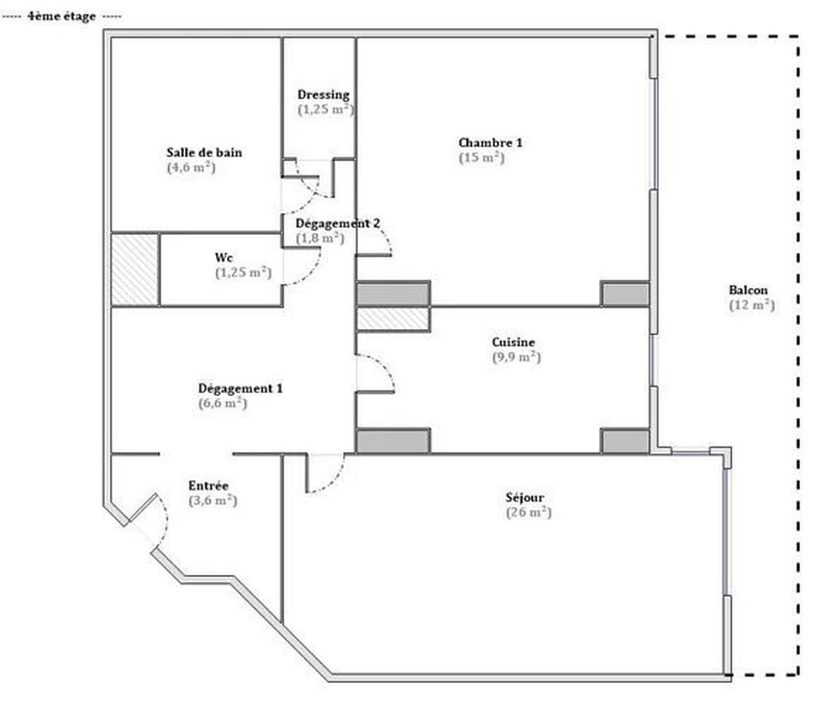
In the prestigious Carré d'Or district, within the luxury residence Le Parnasse, this spacious 2-room apartment offers a blend of elegance and quality construction. The apartment, located on the 4th floor with elevator access, spans 70 m² and features a large entrance hall with a cupboard and hallway. The separate kitchen can easily be opened onto the living room, creating a generous living area. The living room extends to a 12 m² west-facing balcony-terrace, perfect for enjoying natural light and sunny evenings.

The sleeping area includes a large bedroom, a dressing room, a bathroom with a WC, and an additional separate WC. A cellar in the basement provides extra storage space. This apartment is ideally situated near the park, the beach, and various shops, making it one of the city's most sought-after locations. It is suitable as a primary residence, a pied-à-terre, or a heritage investment. Renovation work is anticipated, with the possibility of transforming the space into a 3-room apartment.