2 Bedroom · 3 rooms in Carre d'Or

630,000
Bedrooms: 2 Rooms: 3 Carre d'Or

Description

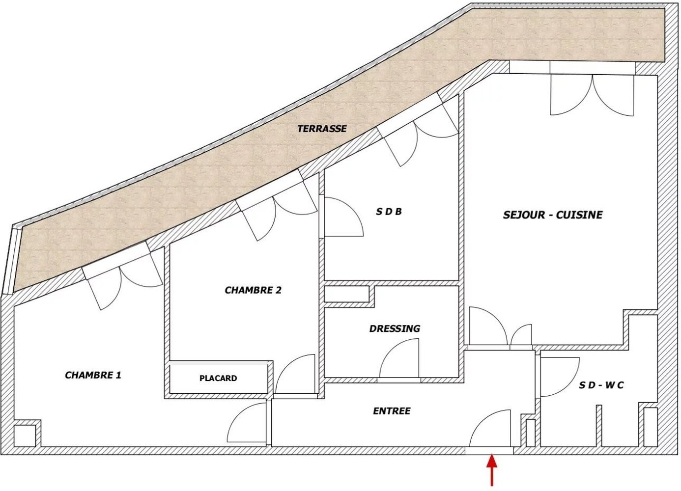
This apartment, situated on the top floor of the Le Fenice residence at 26 boulevard Gambetta, offers a blend of comfort and convenience. Built in 2001, this 3-room property boasts a clear view and a glimpse of the sea. Covering an area of 60.71 square meters, it features a 13.90 square meter terrace that can be accessed from all rooms, enhancing the living experience with ample outdoor space.

Inside, the apartment comprises an entrance, a living room with an integrated kitchen, two bedrooms, a bathroom, an additional bathroom with a WC, and two cellars on the ground floor. Modern amenities include double glazing and centralized air conditioning, ensuring a comfortable living environment. The panoramic views of the town and sea add to the appeal, making this apartment an ideal choice for those seeking a well-situated and comfortable home.