2 Bedroom · 3 rooms in Old Town

295,000
Bedrooms: 2 Rooms: 3 Old Town

Description

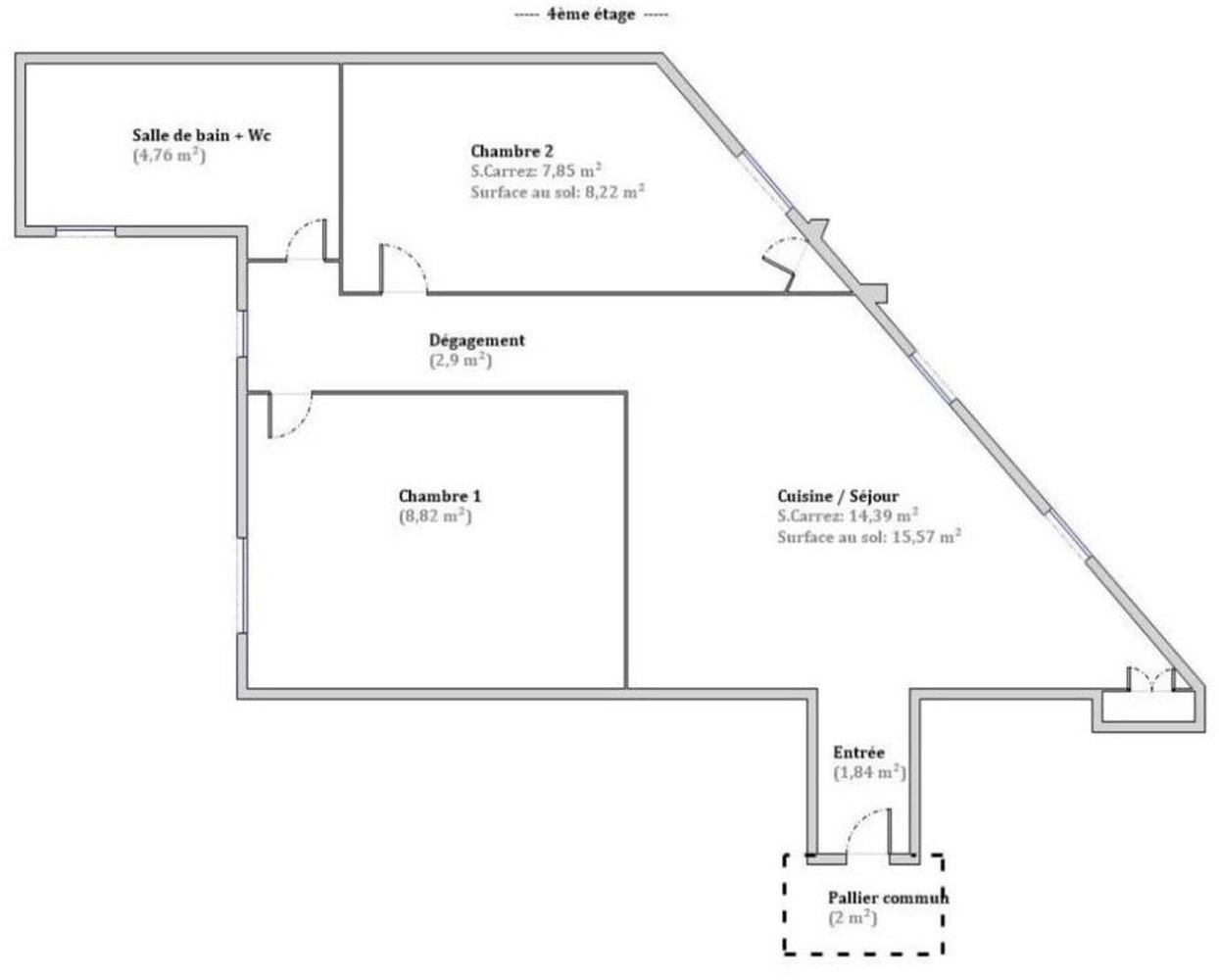
In the heart of Nice, on Rue Centrale, this charming 41 m² three-room apartment offers an exceptional living experience. Positioned on the fourth floor, it provides a captivating view over the prestigious Lycée Masséna and the beautiful Coulée Verte. This prime location places you at the entrance of Vieux-Nice, surrounded by the sea, Place Masséna, the tramway, and the iconic streets of the historic center. The area is highly sought after by both professionals and investors.

This turnkey apartment has been fully renovated and is ready for immediate occupancy. It features a bright living room with an open view, two bedrooms, a modern bathroom, reversible air conditioning, and double glazing. Situated on a high floor, the apartment is bathed in light, offering a rare and unobstructed view that serves as a daily living tableau.

The property is an ideal investment opportunity in Nice Centre, a sector with strong rental demand. It promises attractive returns and allows for furnished and seasonal rentals, including options like Airbnb, LMNP, or student accommodations. This makes it perfect for a first purchase or a pied-à-terre. Renovated and optimized properties like this one are rare in such a strategic location.