3 Bedroom · 4 rooms in Carre d'Argent

850,000
Bedrooms: 3 Rooms: 4 Carre d'Argent

Description

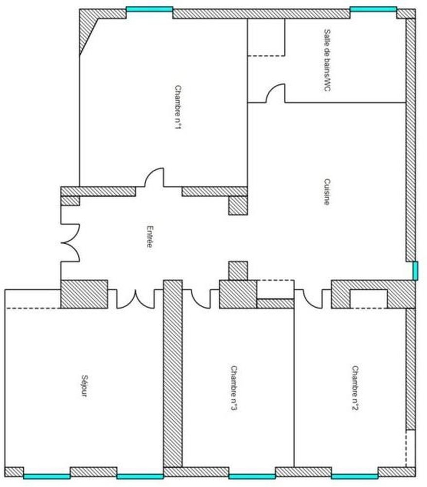
This apartment, with a surface area of 100 m² Carrez Law, is housed within a luxurious old building, offering a bright and comfortable living environment. The generous volumes and high ceilings create an immediate sense of space upon entry. Its layout is both fluid and functional, ensuring a pleasant daily living experience.

The living area is centered around a well-equipped kitchen, designed for practicality and social interaction, featuring a central island that seamlessly integrates with the dining space. Parquet flooring in the living rooms adds warmth and character throughout the home.

The apartment includes three spacious bedrooms, perfect for family life, an office, or a guest room. The bathroom is large and well-appointed, featuring both a bathtub and a shower, providing a comfortable and bright space.

Located in the highly desirable Carré d'Or area of Nice, the property is just steps away from the tram stop, Jean Médecin, prestigious boutiques, shops, and the Coulée Verte. This prime location offers a practical and pleasant urban living environment.

Additionally, the apartment benefits from an attic within the same building, providing valuable extra storage space. This 100 m² property is highly sought after for its spaciousness, prime location, and overall quality, making it ideal as a main residence or a pied-à-terre.