3 Bedroom · 4 rooms in Carre d'Or

799,000
Bedrooms: 3 Rooms: 4 Carre d'Or

Description

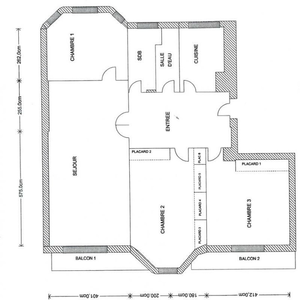
This top-floor, four-room apartment offers an exceptional living experience on the iconic Promenade des Anglais in Nice. Spanning approximately 115 square meters, this residence is located in the historic "Forum," once known as the "Palais de la Promenade." The apartment provides a clear view of the surrounding buildings to the west and a partial sea view, just steps from the promenade.

The property is characterized by its spacious layout, featuring a large living and dining area of about 35 square meters, an independent kitchen, three generously sized bedrooms, two shower rooms, and two toilets. The elegant entrance reception and two balconies add to its charm, offering a peaceful retreat despite its central location. The apartment retains its Art Deco charm with original parquet flooring and high ceilings adorned with decorative moldings, reflecting the era's elegance. A cellar is also included, providing additional storage space.

The building itself is an architectural masterpiece by Georges Dikansky, featuring a symmetrical facade on the Promenade des Anglais and a series of oriels with strip windows on its lateral facades. The property is part of a condominium comprising 70 lots, with 16 in this section of the building. Although the apartment requires internal refreshing, it presents an excellent opportunity to tailor the space to your preferences.

The monthly management cost is 311 euros, covering heating, cold water, elevator maintenance, and common charges. The agency fees will be exclusively covered by the seller. The property has an energy efficiency rating of class E, and there are 70 lots in the co-ownership.