3 Bedroom · 4 rooms in Port

395,000
Bedrooms: 3 Rooms: 4 Port

Description

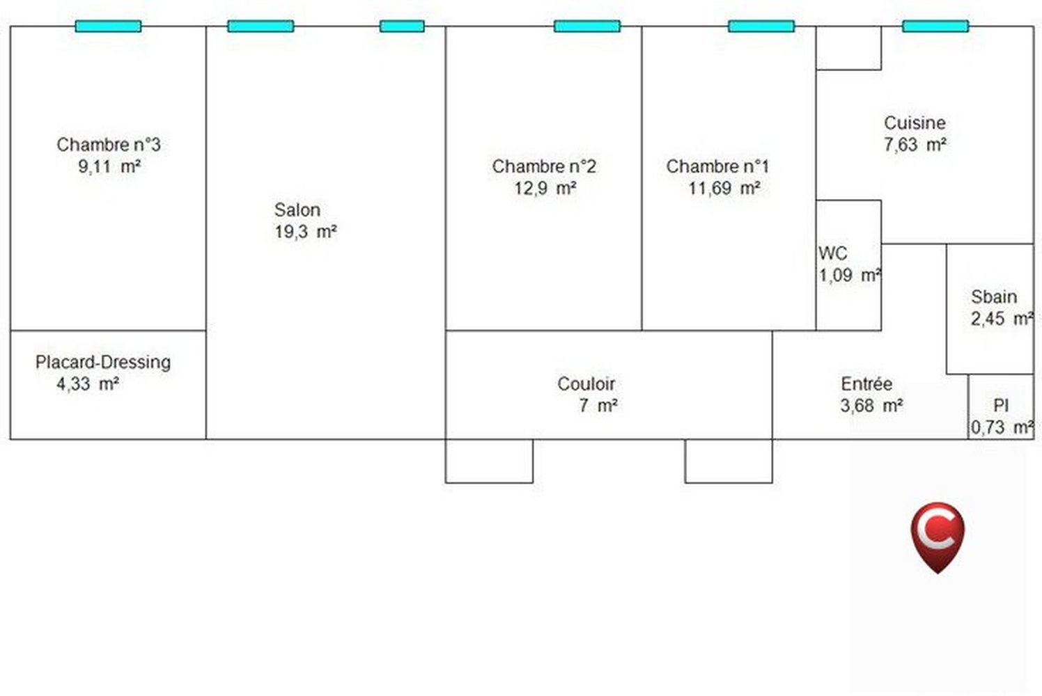
This charming T4 apartment is located on the 2nd floor of a historic 5-story building dating back to 1850. With a living area of 79.91 m² and a floor area of 85.00 m², it presents an excellent opportunity for customization, ideal for those looking to personalize their living space. The apartment comprises four rooms, including three bedrooms, a bathroom, and a separate toilet. A 5.00 m² balcony provides a pleasant outdoor area to relax and enjoy. The apartment benefits from an eastern exposure, allowing for ample natural light throughout the day. While the apartment itself requires renovation, the building's common areas are well-maintained, and an elevator is available for added convenience. The apartment features individual heating and an independent kitchen, offering flexibility in arranging the space to suit your preferences. This property promises stunning views of the city and offers a unique opportunity to create a modern, stylish interior or to preserve its historical charm.

The surrounding area offers various amenities, making daily life easier and more convenient.

The apartment is part of a co-ownership consisting of 37 lots. The average share of the forecast budget is €1,280 per year. There are no ongoing legal proceedings. The energy efficiency of the apartment is classified as Energy class D and Climate class D. The estimated annual energy expenditure for standard use ranges between €1,125.00 and €1,523.00 for the years 2021, 2022, and 2023, including subscriptions. Agency fees are payable by the seller.