4 Bedroom · 5 rooms in Carre d'Argent

715,000
Bedrooms: 4 Rooms: 5 Carre d'Argent

Description

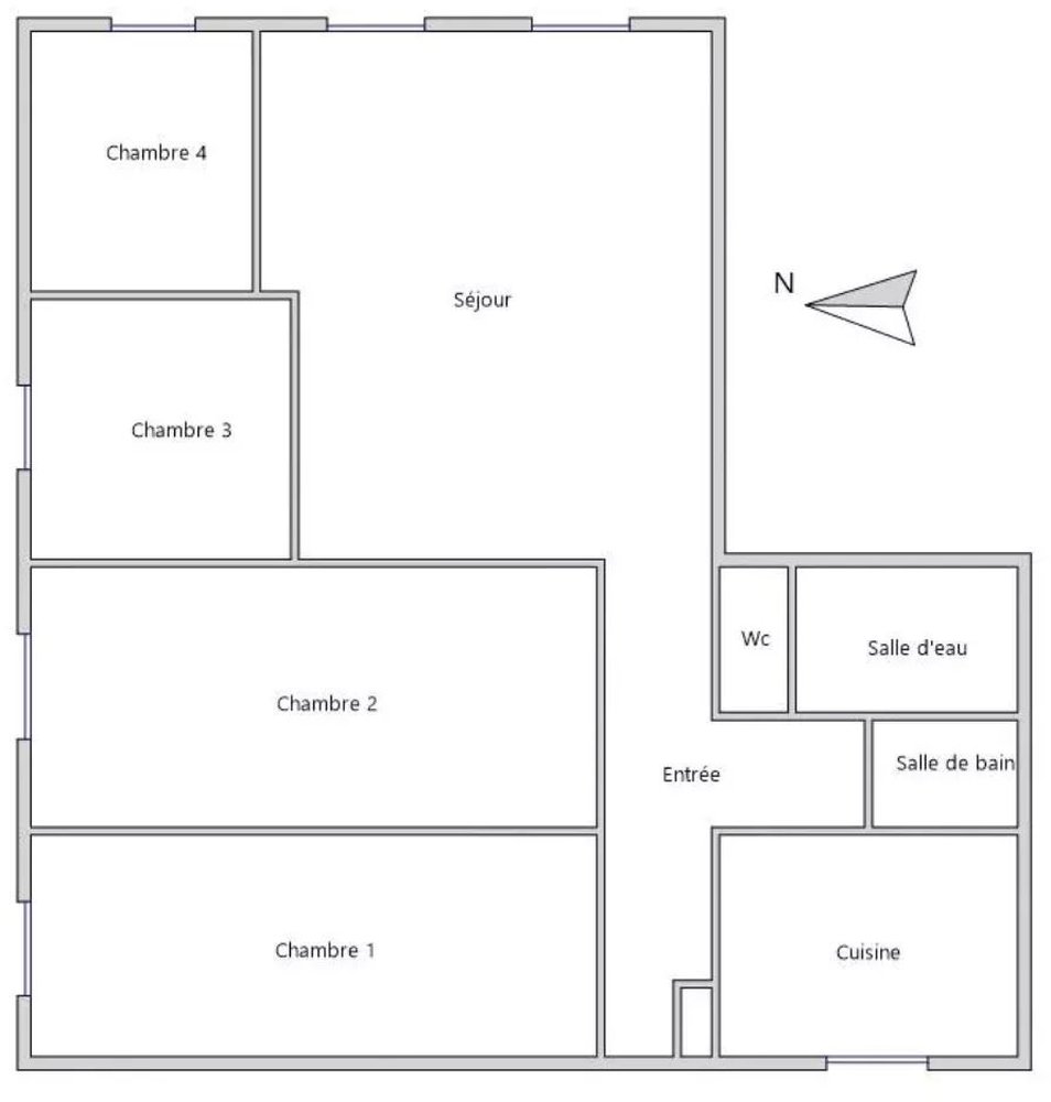
In the heart of Nice, this charming top-floor apartment offers a spacious 117 m² of living space within a characterful Niçois building. The property features a 30 m² living room facing east, ensuring plenty of natural light as it overlooks Rue Gioffredo. The apartment includes a bedroom with a clear view over the rooftops of Nice and a second bedroom facing Rue Delille. Additionally, there are two more spacious bedrooms, one of which includes a dressing area.

The apartment is equipped with a fully fitted kitchen with a westward orientation, providing a pleasant and functional space. A bathroom and a separate toilet add to the convenience, while a large cellar offers extra storage. The property benefits from high ceilings, creating an airy atmosphere, and enjoys a peaceful setting with unobstructed views. Its prime location is just a short walk from the Coulée Verte and Durandy tram station, making it an ideal choice for those seeking a central and tranquil living environment in Nice.

The agency fees are the responsibility of the seller.